Çerez Bilgilendirmesi
İnternet sitemizden en verimli şekilde faydalanabilmeniz ve kullanıcı deneyiminizi geliştirebilmek için çerezler (cookie) kullanmaktayız. Bu web sitesini kullanarak çerezleri kullanmamıza izin vermiş olursunuz.
Belediye Meclisi'nin 07.09.2024 tarihli ve
96 sayılı kararı ile onaylanmış olan imar planına ilişkin aşağıdaki karar
metninin 3194 sayılı İmar Kanunu'nun 8/b maddesi gereğince
13.09.2024 tarihinden başlamak üzere bir ay süre
ile ilan yapılması ve ilan tutanağının Müdürlüğümüze
gönderilmesi gerekmektedir
Bilgilerinize arz ederim.
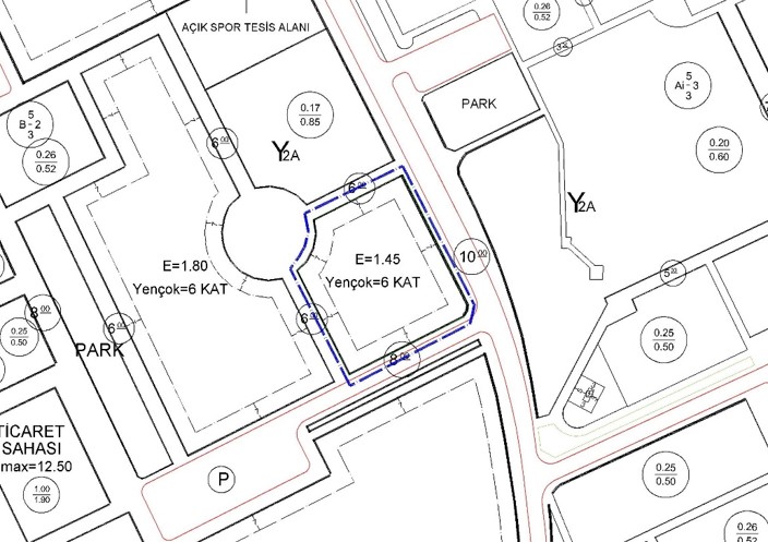
Çorum İli, Merkez İlçesi,
Ayarık Mahallesi, 4424 ada, 118 nolu parsele yönelik olarak plan müellifi
tarafından hazırlanan 1/5000 ölçekli Nazım İmar Planı ve 1/1000 ölçekli
Uygulama İmar Planı değişikliği teklifi İmar Komisyonumuzca yapılan incelemede;
Ayarık Mahallesi, 4424 ada, 118 nolu parselin
Binevler tip projelerinden Y2A tipi yapılaşmaya sahip konut alanı olarak planlı
olduğu, Y2A tip projesinin 5 katlı olduğu, 4424 ada 118 nolu parselin yaklaşık
emsalinin 1,19’a denk geldiği, parselde bulunan yapının 1984 yılı yapımı
olduğu, tapu kayıtlarında beyanlar hanesinde “6306 Sayılı Kanun Gereğince
Riskli Yapıdır.” belirtmesinin bulunduğu görülmektedir.
Teklif; Plan değişikliği teklifi ile 4424
ada, 118 nolu parselin konut alanı olan plan fonksiyonunda bir değişiklik
yapılmadan Y2A tip proje olan yapılaşma koşulunun kaldırıldığı, yaklaşık 1.19’a
denk gelen emsal değerinin Belediye Başkanımız Dr. Halil İbrahim AŞGIN Bey'in
riskli yapı tespiti yaptıran 2500 m² üzeri parsellere yönelik olarak %20 emsal
artışı yapılacağı şeklindeki beyanlarına istinaden 1.45 olarak değiştirildiği,
yapı yüksekliğinin Yençok:6 kat, yapı yaklaşma mesafelerini tüm cephelerden 7
metre olarak belirlendiği ve plan notlarına,
1- 4424 ada 118 nolu parselde TAKS:0,30’u
geçemez.
2- Yapılar çekme mesafeleri içerisinde
istenilen yere yapılabilir.
3- Belirtilmeyen diğer hususlarda
3194 Sayılı İmar Kanunu, Planlı Alanlar İmar Yönetmeliği ile diğer ilgili
yönetmelik hükümleri geçerlidir. Şeklinde hükümler eklendiği görülmektedir.
Şeklindeki İmar Komisyon Raporunu oya
sunmuştur.
Yapılan işaretle oylama sonunda; İmar
Komisyonu'nca da uygun bulunan, Deprem kuşağında olmamız sebebiyle olası
depremlere karşı dayanıklı yapılar üretmek, deprem yönetmeliğine uygun olmayan
yapıların bir an önce deprem yönetmeliğine uygun olarak dönüşümünün
sağlanmasına destek olmak amacıyla, Çorum İli, Merkez İlçesi, Ayarık Mahallesi,
4424 ada, 118 nolu parsele yönelik olarak plan müellifi tarafından hazırlanan
1/5000 ölçekli Nazım İmar Planı (NİP:191065155) ve 1/1000 ölçekli Uygulama İmar
Planı (UİP:191065153) değişikliği teklifi, 3194 Sayılı İmar Kanunun 8/b maddesi
gereğince, Meclisce 07.09.2024 tarihli ve 96
sayılı BMK ile onaylanmıştır.
Planlar
13.09.2024 tarihinden itibaren bir ay süre ile Belediye İmar ve Şehircilik
Müdürlüğü 3.Kat ilan panosunda ve www.corum.bel.tr adresi
“https://www.corum.bel.tr/duyurular/imaruygulamalari” bölümünde eş zamanlı
olarak askı ilana çıkartılmıştır. 
İlgili Müdürlük
Kunduzhan Mahallesi, Farabi Caddesi, No: 22, Çorum Belediyesi Hizmet Binası B Blok, Kat: 3
0364 319 15 10
İMAR UYGULAMASI(18.MADDE)
İmar Uygulamaları17 Kasım 2025 Pazartesi
İMAR UYGULAMASI (18.MADDE)
İmar Uygulamaları17 Kasım 2025 Pazartesi
Çorum İli, Merkez İlçesi, Karaca Köyü, 4213 ada, 1 no’lu parselin bir kısmına yönelik plan müellifi tarafından hazırlanan 1/5000 ölçekli Nazım İmar Planı ve 1/1000 ölçekli Uygulama İmar Planı değişikliği teklifi
İmar Uygulamaları14 Kasım 2025 Cuma
Çorum İli, Merkez İlçesi Ayarık Mahallesi, 4371 ada, 115 ve 116 no’lu parsellerin bir kısmına yönelik plan müellifi tarafından hazırlanan 1/5000 ölçekli Nazım İmar Planı ve 1/1000 ölçekli Uygulama İmar Planı değişikliği teklifi
İmar Uygulamaları14 Kasım 2025 Cuma
Çorum İli, Merkez İlçesi, Çöplü Mahallesi sınırları içerisinde bulunan 5313 ada,1 no’lu parsel ve yakın çevresine yönelik plan müellifi tarafından hazırlanan 1/5000 ölçekli Nazım İmar Planı ve 1/1000 ölçekli Uygulama İmar Planı değişikliği teklifi
İmar Uygulamaları14 Kasım 2025 Cuma
Çorum İli, Merkez İlçesi, Pınarçay Köyü, 192 ada, 82 no’lu parselin bir kısmına yönelik plan müellifi tarafından hazırlanan 1/5000 ölçekli Nazım İmar Planı ve 1/1000 ölçekli Uygulama İmar Planı değişikliği
İmar Uygulamaları14 Kasım 2025 Cuma
İnternet sitemizden en verimli şekilde faydalanabilmeniz ve kullanıcı deneyiminizi geliştirebilmek için çerezler (cookie) kullanmaktayız. Bu web sitesini kullanarak çerezleri kullanmamıza izin vermiş olursunuz.