Çerez Bilgilendirmesi
İnternet sitemizden en verimli şekilde faydalanabilmeniz ve kullanıcı deneyiminizi geliştirebilmek için çerezler (cookie) kullanmaktayız. Bu web sitesini kullanarak çerezleri kullanmamıza izin vermiş olursunuz.

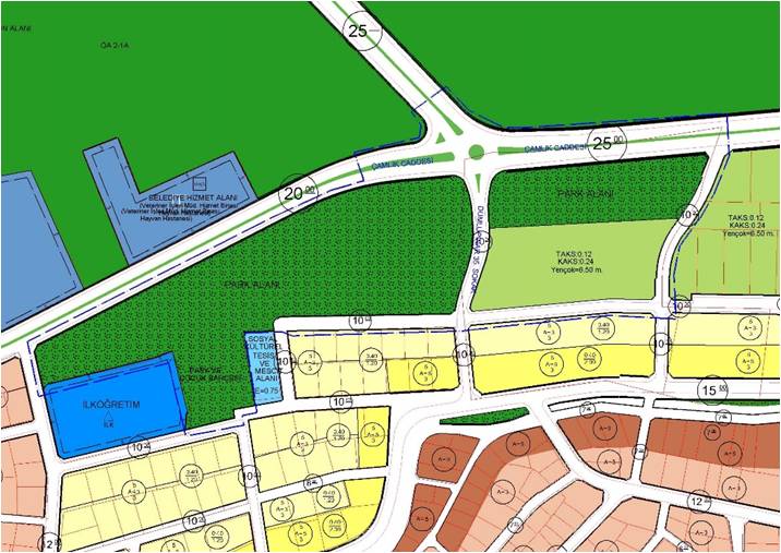
Çorum İli, Merkez İlçesi, Bahçelievler
Mahallesi, 52 ve 54 nolu kadastro paftaları dahilinde kalan 172 ada, 6 nolu
parsel ve çevresine yönelik olarak hazırlanan Çamlık Caddesi ile
Dumlupınar 35. Sokağın kesişimine Ulaşım Müdürlüğü tarafından hazırlanan kavşak
projesinin plana işaretlendiği, Dumlupınar 35. Sokağın plan sınırları
içerisindeki kısmının kavşağa bağlanacak şekilde yeniden düzenlendiği, 172 ada,
6 nolu parselin bir kısmının TAKS:0.12, KAKS:0.24, Yençok:6.50 yapılaşma
koşullarına sahip konut alanı olarak işaretlendiği ve Dumlupınar 35. Sokağın
batı kısmında bulunan ve ağaçlık dokuya sahip olan park ve çocuk bahçesi
arasında bulunan yolun kaldırılarak park alanına dahil edildiği,
Plan notlarına;
-
TAKS:0.12, KAKS:0.24, Yençok:6.50 yapılaşma koşullarına sahip konut alanlarında
07.09.2015 tarih 138 sayılı Belediye Meclis Kararıyla onaylanan plan hükümleri
uygulanır. Şeklinde 1/5000 ölçekli Nazım İmar Planı (NİP:191062827)
ve 1/1000 ölçekli Uygulama İmar Planı (UİP:191062828) değişikliği teklifi
3194 Sayılı İmar Kanunun 8/b maddesi gereğince, Meclisce 07.08.2024
tarih ve 88 sayılı belediye meclis kararı ile OY ÇOKLUĞUYLA onanmıştır.
Onaylı uygulama imar plan değişikliği teklifi;
3194 sayılı İmar Kanunun 8/b maddesi gereğince 13.08.2024 tarihinden
itibaren 1 ay süre ile Çorum Belediyesi, İmar ve Şehircilik Müdürlüğünde
askı-ilana çıkarılmıştır.
Meclis kararına ulaşmak için TIKLAYINIZ
İlgili Müdürlük
Kunduzhan Mahallesi, Farabi Caddesi, No: 22, Çorum Belediyesi Hizmet Binası B Blok, Kat: 3
0364 319 15 10
İMAR UYGULAMASI(18.MADDE)
İmar Uygulamaları17 Kasım 2025 Pazartesi
İMAR UYGULAMASI (18.MADDE)
İmar Uygulamaları17 Kasım 2025 Pazartesi
Çorum İli, Merkez İlçesi, Karaca Köyü, 4213 ada, 1 no’lu parselin bir kısmına yönelik plan müellifi tarafından hazırlanan 1/5000 ölçekli Nazım İmar Planı ve 1/1000 ölçekli Uygulama İmar Planı değişikliği teklifi
İmar Uygulamaları14 Kasım 2025 Cuma
Çorum İli, Merkez İlçesi Ayarık Mahallesi, 4371 ada, 115 ve 116 no’lu parsellerin bir kısmına yönelik plan müellifi tarafından hazırlanan 1/5000 ölçekli Nazım İmar Planı ve 1/1000 ölçekli Uygulama İmar Planı değişikliği teklifi
İmar Uygulamaları14 Kasım 2025 Cuma
Çorum İli, Merkez İlçesi, Çöplü Mahallesi sınırları içerisinde bulunan 5313 ada,1 no’lu parsel ve yakın çevresine yönelik plan müellifi tarafından hazırlanan 1/5000 ölçekli Nazım İmar Planı ve 1/1000 ölçekli Uygulama İmar Planı değişikliği teklifi
İmar Uygulamaları14 Kasım 2025 Cuma
Çorum İli, Merkez İlçesi, Pınarçay Köyü, 192 ada, 82 no’lu parselin bir kısmına yönelik plan müellifi tarafından hazırlanan 1/5000 ölçekli Nazım İmar Planı ve 1/1000 ölçekli Uygulama İmar Planı değişikliği
İmar Uygulamaları14 Kasım 2025 Cuma
İnternet sitemizden en verimli şekilde faydalanabilmeniz ve kullanıcı deneyiminizi geliştirebilmek için çerezler (cookie) kullanmaktayız. Bu web sitesini kullanarak çerezleri kullanmamıza izin vermiş olursunuz.